Till salu
Sälja
Kontakta oss
Värdering
Mer
Till salu
Nyproduktion
Sålda
Sälja
Värdering
Bäst Förberedd
Fotografering
Homestyling
Köpa bostad
Bostadsönskemål
Budgivning
Bolån
Om oss
Kontakta oss
Våra kärnvärden
Ombildning bostadsrätter
Jobba hos oss
Integritetspolicy
Våra kontor
Södermalm
Hammarby Sjöstad
Liljeholmen
Hägersten
Hallunda/Norsborg
08-644 90 44
Denna bostad är såld
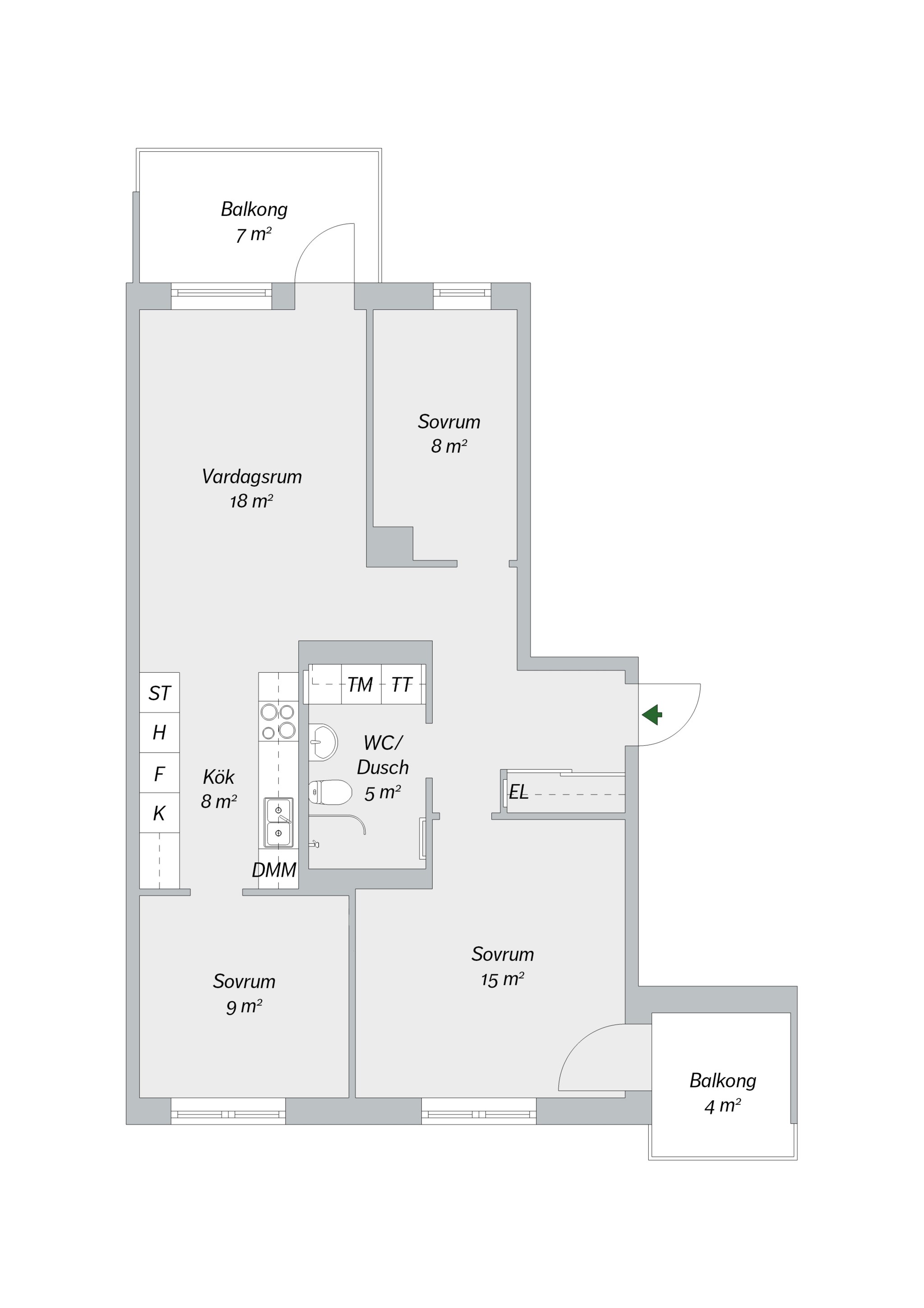
Årstaskogs Väg 7C, 5 tr
Årstaberg/Liljeholmskajen
3
rok
76 kvm
4 856 kr/mån
5 750 000 kr (slutpris)
Emelie Keites
Ansvarig fastighetsmäklare
+46 72-536 37 14
Skicka e-post
Emelie Keites
Ansvarig fastighetsmäklare
+46 72-536 37 14
Skicka e-post
Vill du veta
mer om bostaden?
Fyll i dina uppgifter nedan så kontaktar jag dig.
* obligatorisk uppgift
Förnamn *
Efternamn *
Telefon *
E-post *
E-post *
Jag godkänner Södermäklarnas
personuppgiftspolicy
.
Skicka
Tack! Vi hör av oss så snart vi kan.
Stäng